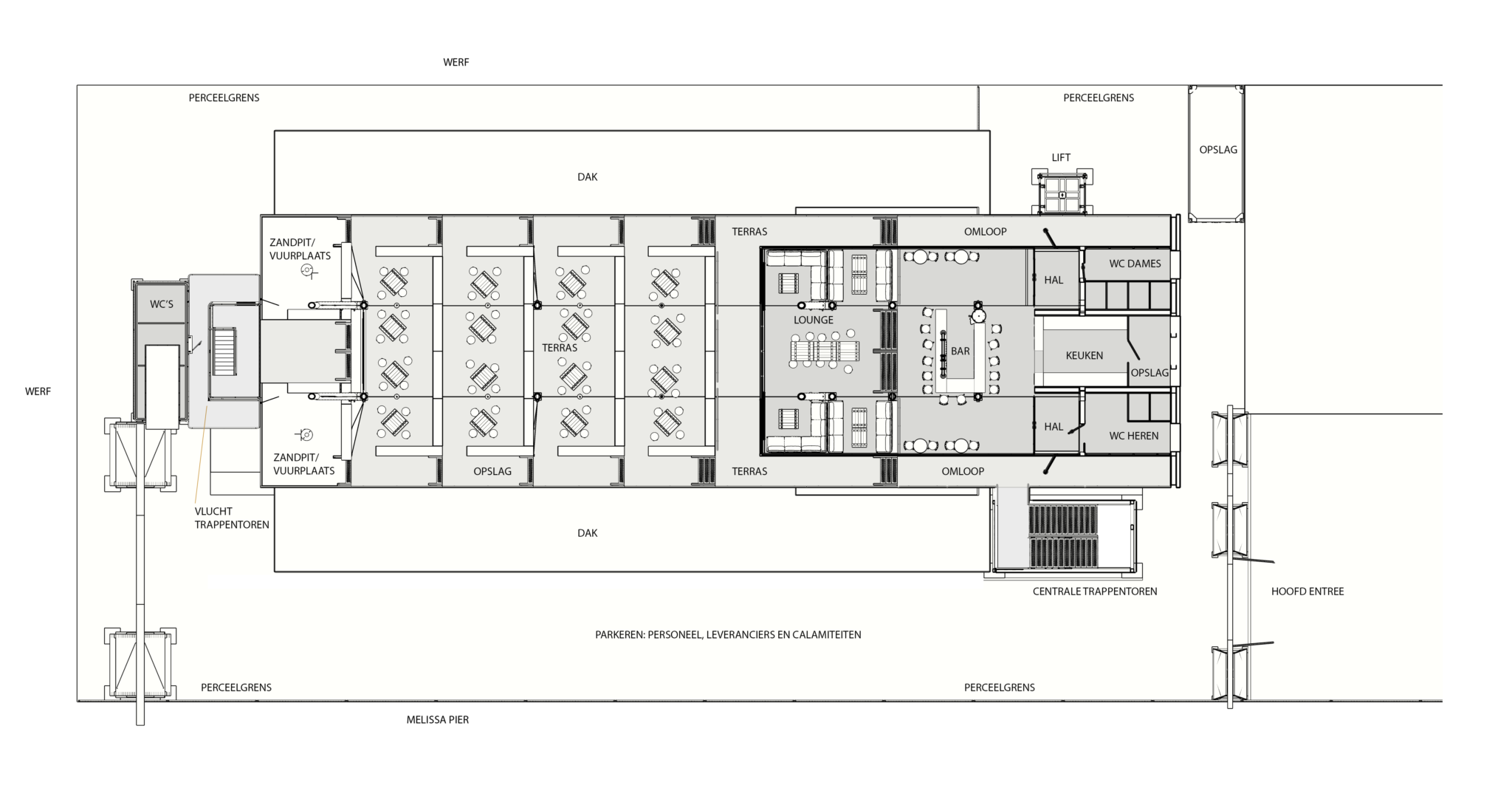
Projectomschrijving:
Helling 7 terras, Bar/restaurant, ontmoetingsplek aan het IJ, circulair gebouw
Projectgegevens:
– PvE: Terras, bar/restaurant.
– BVO: gebouw 180m2, terras 350m2
– Ontwerppartijen: Droogburo, Michal Suskiewicz
– Status: Vergunningstraject
Link naar brochure:
Presentatie_helling 7_SO7_compressed
view=360] [vr url=
view=360]













